Pièces d'angle pour éléments en équerre TRIPLA lisses
Pièces d'angle pour éléments en équerre TRIPLA lisses
Pièces d'angle pour éléments en équerre TRIPLA lisses
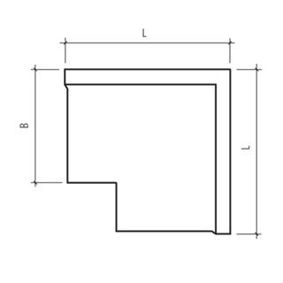
Pièce d'angle TRIPLA armée a 90°
M8111 Art. 103620
Groupe
MM
Couleur
gris
type
12.3
Longeur L (cm)
100
Largeur B (cm)
40
Hauteur H (cm)
55
Epaisseur de paroi W (cm)
12
Épaisseur du fond t<sub>1</sub> (cm)
12
Angle alpha
90
Poids kg/UV
418
Surface
lisse
Arêtes
chanfreiné
Armature
armé
Ligne de produits
TRIPLA
Usine de production
76
Swissness
Swissness
L 100 cm B 40 cm H 55 cm W 12 cm
Brut CHF
CHF 360.00 / pce
Téléchargements
Téléchargements CAO et BIM