Zurück

Kabelkeller für Elektroladestationen

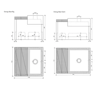
Produkt: D1523
Die clevere Lösung

Die vorfabrizierten Betonelemente für Elektroladestationen sind mit Leerrohren M25/M32, sowie einer Doppeldose für die Verkabelung der Ladestationen ausgestattet. In Kombination mit dem passenden Kabelkeller für Elektrostationen lassen sich Elektroladestationen im Handumdrehen realisieren. Unkompliziertes Baukastensystem. Unsere vorfabrizierten Kabelkeller eignen sich als Fundamente nicht nur für die Ladestationen, sondern auch für Ampeln, Parkuhren, Installation der Verkehrssicherheit und -kontrollen, sowie Signaletik-Systeme.
Artikelnummer
Spezifikation
Verfügbarkeit
Artikelnummer
Preis CHF
Per
Gruppe
LE-Norm
Farbe
Typ
Belastungsklasse BK
Innendurchmesser D (mm)
Innendurchmesser d1 (mm)
Nennweite DN (mm)
Einwohnergleichwert EGW
Maximale Belastung F max.
Länge L (mm)
Länge l1 (mm)
Länge l2 (mm)
Breite B (mm)
Breite b1 (mm)
Höhe H (mm)
Höhe h2 (mm)
Höhe h1 (mm)
Höhe h3 (mm)
Lichte Weite LW (mm)
Max. zulässiges Biegemoment MBr
Biegemoment in X-Richtung Mx
Biegemoment in Y-Richtung My
Nenngrösse NG (l/s)
Nennweite NW (mm)
Aussendurchmesser OD (mm)
Radlast RL (to)
Bodenstärke t1 (mm)
Volumen V (l)
Wandstärke W (mm)
Wandstärke w1 (mm)
Stk./Pal.
Gewicht kg/VE
Oberfläche
Kanten
Nocken
Bewehrung
Produktlinie
HW
Artikelnummer 187311
Verfügbarkeit
Artikelnummer 187311
Preis 425.00
Per Stk
Gruppe DK
LE-Norm
Farbe
Typ
Belastungsklasse BK
Innendurchmesser D (mm)
Innendurchmesser d1 (mm)
Nennweite DN (mm)
Einwohnergleichwert EGW
Maximale Belastung F max.
Länge L (mm) 350
Länge l1 (mm)
Länge l2 (mm)
Breite B (mm) 350
Breite b1 (mm)
Höhe H (mm) 600
Höhe h2 (mm)
Höhe h1 (mm)
Höhe h3 (mm)
Lichte Weite LW (mm)
Max. zulässiges Biegemoment MBr
Biegemoment in X-Richtung Mx
Biegemoment in Y-Richtung My
Nenngrösse NG (l/s)
Nennweite NW (mm)
Aussendurchmesser OD (mm)
Radlast RL (to)
Bodenstärke t1 (mm)
Volumen V (l)
Wandstärke W (mm) 100
Wandstärke w1 (mm)
Stk./Pal. 1
Gewicht kg/VE 135
Oberfläche
Kanten
Nocken
Bewehrung
Produktlinie
HW 14
Artikelnummer 133743
Verfügbarkeit
Artikelnummer 133743
Preis 645.00
Per Stk
Gruppe DK
LE-Norm
Farbe
Typ
Belastungsklasse BK
Innendurchmesser D (mm)
Innendurchmesser d1 (mm)
Nennweite DN (mm)
Einwohnergleichwert EGW
Maximale Belastung F max.
Länge L (mm) 600
Länge l1 (mm)
Länge l2 (mm)
Breite B (mm) 600
Breite b1 (mm)
Höhe H (mm) 600
Höhe h2 (mm)
Höhe h1 (mm)
Höhe h3 (mm)
Lichte Weite LW (mm)
Max. zulässiges Biegemoment MBr
Biegemoment in X-Richtung Mx
Biegemoment in Y-Richtung My
Nenngrösse NG (l/s)
Nennweite NW (mm)
Aussendurchmesser OD (mm)
Radlast RL (to)
Bodenstärke t1 (mm)
Volumen V (l)
Wandstärke W (mm) 100
Wandstärke w1 (mm)
Stk./Pal. 1
Gewicht kg/VE 340
Oberfläche
Kanten
Nocken
Bewehrung
Produktlinie
HW 14
Artikelnummer 104879
Verfügbarkeit
Artikelnummer 104879
Preis 845.00
Per Stk
Gruppe DK
LE-Norm
Farbe
Typ
Belastungsklasse BK
Innendurchmesser D (mm)
Innendurchmesser d1 (mm)
Nennweite DN (mm)
Einwohnergleichwert EGW
Maximale Belastung F max.
Länge L (mm) 1000
Länge l1 (mm)
Länge l2 (mm)
Breite B (mm) 1000
Breite b1 (mm)
Höhe H (mm) 600
Höhe h2 (mm)
Höhe h1 (mm)
Höhe h3 (mm)
Lichte Weite LW (mm)
Max. zulässiges Biegemoment MBr
Biegemoment in X-Richtung Mx
Biegemoment in Y-Richtung My
Nenngrösse NG (l/s)
Nennweite NW (mm)
Aussendurchmesser OD (mm)
Radlast RL (to)
Bodenstärke t1 (mm)
Volumen V (l)
Wandstärke W (mm) 100
Wandstärke w1 (mm)
Stk./Pal. 1
Gewicht kg/VE 742
Oberfläche
Kanten
Nocken
Bewehrung
Produktlinie
HW 14
Artikelnummer 153367
Verfügbarkeit
Artikelnummer 153367
Preis 1'250.00
Per Stk
Gruppe DK
LE-Norm
Farbe
Typ
Belastungsklasse BK
Innendurchmesser D (mm)
Innendurchmesser d1 (mm)
Nennweite DN (mm)
Einwohnergleichwert EGW
Maximale Belastung F max.
Länge L (mm) 800
Länge l1 (mm)
Länge l2 (mm)
Breite B (mm) 800
Breite b1 (mm)
Höhe H (mm) 1020
Höhe h2 (mm)
Höhe h1 (mm)
Höhe h3 (mm)
Lichte Weite LW (mm)
Max. zulässiges Biegemoment MBr
Biegemoment in X-Richtung Mx
Biegemoment in Y-Richtung My
Nenngrösse NG (l/s)
Nennweite NW (mm)
Aussendurchmesser OD (mm)
Radlast RL (to)
Bodenstärke t1 (mm)
Volumen V (l)
Wandstärke W (mm)
Wandstärke w1 (mm)
Stk./Pal. 1
Gewicht kg/VE 770
Oberfläche
Kanten
Nocken
Bewehrung
Produktlinie
HW 14
Artikelnummer 109530
Verfügbarkeit
Artikelnummer 109530
Preis 730.00
Per Stk
Gruppe DK
LE-Norm
Farbe
Typ
Belastungsklasse BK
Innendurchmesser D (mm)
Innendurchmesser d1 (mm)
Nennweite DN (mm)
Einwohnergleichwert EGW
Maximale Belastung F max.
Länge L (mm) 450
Länge l1 (mm)
Länge l2 (mm)
Breite B (mm) 450
Breite b1 (mm)
Höhe H (mm) 600
Höhe h2 (mm)
Höhe h1 (mm)
Höhe h3 (mm)
Lichte Weite LW (mm)
Max. zulässiges Biegemoment MBr
Biegemoment in X-Richtung Mx
Biegemoment in Y-Richtung My
Nenngrösse NG (l/s)
Nennweite NW (mm)
Aussendurchmesser OD (mm)
Radlast RL (to)
Bodenstärke t1 (mm)
Volumen V (l)
Wandstärke W (mm) 80
Wandstärke w1 (mm)
Stk./Pal. 1
Gewicht kg/VE 137
Oberfläche
Kanten
Nocken
Bewehrung
Produktlinie
HW 14
Artikelnummer 100509
Verfügbarkeit
Artikelnummer 100509
Preis 895.00
Per Stk
Gruppe DK
LE-Norm
Farbe
Typ
Belastungsklasse BK
Innendurchmesser D (mm)
Innendurchmesser d1 (mm)
Nennweite DN (mm)
Einwohnergleichwert EGW
Maximale Belastung F max.
Länge L (mm) 600
Länge l1 (mm)
Länge l2 (mm)
Breite B (mm) 600
Breite b1 (mm)
Höhe H (mm) 600
Höhe h2 (mm)
Höhe h1 (mm)
Höhe h3 (mm)
Lichte Weite LW (mm)
Max. zulässiges Biegemoment MBr
Biegemoment in X-Richtung Mx
Biegemoment in Y-Richtung My
Nenngrösse NG (l/s)
Nennweite NW (mm)
Aussendurchmesser OD (mm)
Radlast RL (to)
Bodenstärke t1 (mm)
Volumen V (l)
Wandstärke W (mm) 80
Wandstärke w1 (mm)
Stk./Pal.
Gewicht kg/VE 248
Oberfläche
Kanten
Nocken
Bewehrung
Produktlinie
HW 14
Artikelnummer 149732
Verfügbarkeit
Artikelnummer 149732
Preis 730.00
Per Stk
Gruppe DK
LE-Norm
Farbe
Typ
Belastungsklasse BK
Innendurchmesser D (mm)
Innendurchmesser d1 (mm)
Nennweite DN (mm)
Einwohnergleichwert EGW
Maximale Belastung F max.
Länge L (mm) 450
Länge l1 (mm)
Länge l2 (mm)
Breite B (mm) 450
Breite b1 (mm)
Höhe H (mm) 600
Höhe h2 (mm)
Höhe h1 (mm)
Höhe h3 (mm)
Lichte Weite LW (mm)
Max. zulässiges Biegemoment MBr
Biegemoment in X-Richtung Mx
Biegemoment in Y-Richtung My
Nenngrösse NG (l/s)
Nennweite NW (mm)
Aussendurchmesser OD (mm)
Radlast RL (to)
Bodenstärke t1 (mm)
Volumen V (l)
Wandstärke W (mm) 80
Wandstärke w1 (mm)
Stk./Pal. 1
Gewicht kg/VE 137
Oberfläche
Kanten
Nocken
Bewehrung
Produktlinie
HW 14
Artikelnummer 117587
Verfügbarkeit
Artikelnummer 117587
Preis 895.00
Per Stk
Gruppe DK
LE-Norm
Farbe
Typ
Belastungsklasse BK
Innendurchmesser D (mm)
Innendurchmesser d1 (mm)
Nennweite DN (mm)
Einwohnergleichwert EGW
Maximale Belastung F max.
Länge L (mm) 600
Länge l1 (mm)
Länge l2 (mm)
Breite B (mm) 600
Breite b1 (mm)
Höhe H (mm) 600
Höhe h2 (mm)
Höhe h1 (mm)
Höhe h3 (mm)
Lichte Weite LW (mm)
Max. zulässiges Biegemoment MBr
Biegemoment in X-Richtung Mx
Biegemoment in Y-Richtung My
Nenngrösse NG (l/s)
Nennweite NW (mm)
Aussendurchmesser OD (mm)
Radlast RL (to)
Bodenstärke t1 (mm)
Volumen V (l)
Wandstärke W (mm) 80
Wandstärke w1 (mm)
Stk./Pal.
Gewicht kg/VE 248
Oberfläche
Kanten
Nocken
Bewehrung
Produktlinie
HW 14
Artikelnummer 108889
Verfügbarkeit
Artikelnummer 108889
Preis 1'340.00
Per Stk
Gruppe DK
LE-Norm
Farbe
Typ
Belastungsklasse BK
Innendurchmesser D (mm)
Innendurchmesser d1 (mm)
Nennweite DN (mm)
Einwohnergleichwert EGW
Maximale Belastung F max.
Länge L (mm) 1000
Länge l1 (mm)
Länge l2 (mm)
Breite B (mm) 1000
Breite b1 (mm)
Höhe H (mm) 800
Höhe h2 (mm)
Höhe h1 (mm)
Höhe h3 (mm)
Lichte Weite LW (mm)
Max. zulässiges Biegemoment MBr
Biegemoment in X-Richtung Mx
Biegemoment in Y-Richtung My
Nenngrösse NG (l/s)
Nennweite NW (mm)
Aussendurchmesser OD (mm)
Radlast RL (to)
Bodenstärke t1 (mm)
Volumen V (l)
Wandstärke W (mm) 100
Wandstärke w1 (mm)
Stk./Pal.
Gewicht kg/VE 780
Oberfläche
Kanten
Nocken
Bewehrung
Produktlinie
HW 14
Artikelnummer 183274
Verfügbarkeit
Artikelnummer 183274
Preis 1'340.00
Per Stk
Gruppe DK
LE-Norm
Farbe
Typ
Belastungsklasse BK
Innendurchmesser D (mm)
Innendurchmesser d1 (mm)
Nennweite DN (mm)
Einwohnergleichwert EGW
Maximale Belastung F max.
Länge L (mm) 1000
Länge l1 (mm)
Länge l2 (mm)
Breite B (mm) 1000
Breite b1 (mm)
Höhe H (mm) 800
Höhe h2 (mm)
Höhe h1 (mm)
Höhe h3 (mm)
Lichte Weite LW (mm)
Max. zulässiges Biegemoment MBr
Biegemoment in X-Richtung Mx
Biegemoment in Y-Richtung My
Nenngrösse NG (l/s)
Nennweite NW (mm)
Aussendurchmesser OD (mm)
Radlast RL (to)
Bodenstärke t1 (mm)
Volumen V (l)
Wandstärke W (mm) 100
Wandstärke w1 (mm)
Stk./Pal. 1
Gewicht kg/VE 785
Oberfläche
Kanten
Nocken
Bewehrung
Produktlinie
HW 14
Artikelnummer 126013
Verfügbarkeit
Artikelnummer 126013
Preis 1'740.00
Per Stk
Gruppe DK
LE-Norm
Farbe
Typ
Belastungsklasse BK
Innendurchmesser D (mm)
Innendurchmesser d1 (mm)
Nennweite DN (mm)
Einwohnergleichwert EGW
Maximale Belastung F max.
Länge L (mm) 840
Länge l1 (mm)
Länge l2 (mm)
Breite B (mm) 960
Breite b1 (mm)
Höhe H (mm) 950
Höhe h2 (mm)
Höhe h1 (mm)
Höhe h3 (mm)
Lichte Weite LW (mm)
Max. zulässiges Biegemoment MBr
Biegemoment in X-Richtung Mx
Biegemoment in Y-Richtung My
Nenngrösse NG (l/s)
Nennweite NW (mm)
Aussendurchmesser OD (mm)
Radlast RL (to)
Bodenstärke t1 (mm)
Volumen V (l)
Wandstärke W (mm) 70
Wandstärke w1 (mm)
Stk./Pal.
Gewicht kg/VE 539
Oberfläche
Kanten
Nocken
Bewehrung
Produktlinie
HW 14
Artikelnummer 122400
Verfügbarkeit
Artikelnummer 122400
Preis 2'020.00
Per Stk
Gruppe DK
LE-Norm
Farbe
Typ
Belastungsklasse BK
Innendurchmesser D (mm)
Innendurchmesser d1 (mm)
Nennweite DN (mm)
Einwohnergleichwert EGW
Maximale Belastung F max.
Länge L (mm) 1140
Länge l1 (mm)
Länge l2 (mm)
Breite B (mm) 960
Breite b1 (mm)
Höhe H (mm) 950
Höhe h2 (mm)
Höhe h1 (mm)
Höhe h3 (mm)
Lichte Weite LW (mm)
Max. zulässiges Biegemoment MBr
Biegemoment in X-Richtung Mx
Biegemoment in Y-Richtung My
Nenngrösse NG (l/s)
Nennweite NW (mm)
Aussendurchmesser OD (mm)
Radlast RL (to)
Bodenstärke t1 (mm)
Volumen V (l)
Wandstärke W (mm) 70
Wandstärke w1 (mm)
Stk./Pal.
Gewicht kg/VE 657
Oberfläche
Kanten
Nocken
Bewehrung
Produktlinie
HW 14
Artikelnummer 125032
Verfügbarkeit
Artikelnummer 125032
Preis 2'560.00
Per Stk
Gruppe DK
LE-Norm
Farbe
Typ
Belastungsklasse BK
Innendurchmesser D (mm)
Innendurchmesser d1 (mm)
Nennweite DN (mm)
Einwohnergleichwert EGW
Maximale Belastung F max.
Länge L (mm) 1140
Länge l1 (mm)
Länge l2 (mm)
Breite B (mm) 1130
Breite b1 (mm)
Höhe H (mm) 950
Höhe h2 (mm)
Höhe h1 (mm)
Höhe h3 (mm)
Lichte Weite LW (mm)
Max. zulässiges Biegemoment MBr
Biegemoment in X-Richtung Mx
Biegemoment in Y-Richtung My
Nenngrösse NG (l/s)
Nennweite NW (mm)
Aussendurchmesser OD (mm)
Radlast RL (to)
Bodenstärke t1 (mm)
Volumen V (l)
Wandstärke W (mm) 70
Wandstärke w1 (mm)
Stk./Pal.
Gewicht kg/VE 763
Oberfläche
Kanten
Nocken
Bewehrung
Produktlinie
HW 14
Artikelnummer 114786
Verfügbarkeit
Artikelnummer 114786
Preis 3'240.00
Per Stk
Gruppe DK
LE-Norm
Farbe
Typ
Belastungsklasse BK
Innendurchmesser D (mm)
Innendurchmesser d1 (mm)
Nennweite DN (mm)
Einwohnergleichwert EGW
Maximale Belastung F max.
Länge L (mm) 1140
Länge l1 (mm)
Länge l2 (mm)
Breite B (mm) 1530
Breite b1 (mm)
Höhe H (mm) 950
Höhe h2 (mm)
Höhe h1 (mm)
Höhe h3 (mm)
Lichte Weite LW (mm)
Max. zulässiges Biegemoment MBr
Biegemoment in X-Richtung Mx
Biegemoment in Y-Richtung My
Nenngrösse NG (l/s)
Nennweite NW (mm)
Aussendurchmesser OD (mm)
Radlast RL (to)
Bodenstärke t1 (mm)
Volumen V (l)
Wandstärke W (mm) 70
Wandstärke w1 (mm)
Stk./Pal.
Gewicht kg/VE 1015
Oberfläche
Kanten
Nocken
Bewehrung
Produktlinie
HW 14
Artikelnummer 143287
Verfügbarkeit
Artikelnummer 143287
Preis 2'030.00
Per Stk
Gruppe DK
LE-Norm
Farbe
Typ
Belastungsklasse BK
Innendurchmesser D (mm)
Innendurchmesser d1 (mm)
Nennweite DN (mm)
Einwohnergleichwert EGW
Maximale Belastung F max.
Länge L (mm) 840
Länge l1 (mm)
Länge l2 (mm)
Breite B (mm) 960
Breite b1 (mm)
Höhe H (mm) 950
Höhe h2 (mm)
Höhe h1 (mm)
Höhe h3 (mm)
Lichte Weite LW (mm)
Max. zulässiges Biegemoment MBr
Biegemoment in X-Richtung Mx
Biegemoment in Y-Richtung My
Nenngrösse NG (l/s)
Nennweite NW (mm)
Aussendurchmesser OD (mm)
Radlast RL (to)
Bodenstärke t1 (mm)
Volumen V (l)
Wandstärke W (mm) 70
Wandstärke w1 (mm)
Stk./Pal. 1
Gewicht kg/VE 558
Oberfläche
Kanten
Nocken
Bewehrung
Produktlinie
HW 14
Artikelnummer 187162
Verfügbarkeit
Artikelnummer 187162
Preis 2'400.00
Per Stk
Gruppe DK
LE-Norm
Farbe
Typ
Belastungsklasse BK
Innendurchmesser D (mm)
Innendurchmesser d1 (mm)
Nennweite DN (mm)
Einwohnergleichwert EGW
Maximale Belastung F max.
Länge L (mm) 1140
Länge l1 (mm)
Länge l2 (mm)
Breite B (mm) 960
Breite b1 (mm)
Höhe H (mm) 950
Höhe h2 (mm)
Höhe h1 (mm)
Höhe h3 (mm)
Lichte Weite LW (mm)
Max. zulässiges Biegemoment MBr
Biegemoment in X-Richtung Mx
Biegemoment in Y-Richtung My
Nenngrösse NG (l/s)
Nennweite NW (mm)
Aussendurchmesser OD (mm)
Radlast RL (to)
Bodenstärke t1 (mm)
Volumen V (l)
Wandstärke W (mm) 70
Wandstärke w1 (mm)
Stk./Pal. 1
Gewicht kg/VE 688
Oberfläche
Kanten
Nocken
Bewehrung
Produktlinie
HW 14
Artikelnummer 172842
Verfügbarkeit
Artikelnummer 172842
Preis 2'940.00
Per Stk
Gruppe DK
LE-Norm
Farbe
Typ
Belastungsklasse BK
Innendurchmesser D (mm)
Innendurchmesser d1 (mm)
Nennweite DN (mm)
Einwohnergleichwert EGW
Maximale Belastung F max.
Länge L (mm) 1140
Länge l1 (mm)
Länge l2 (mm)
Breite B (mm) 1130
Breite b1 (mm)
Höhe H (mm) 950
Höhe h2 (mm)
Höhe h1 (mm)
Höhe h3 (mm)
Lichte Weite LW (mm)
Max. zulässiges Biegemoment MBr
Biegemoment in X-Richtung Mx
Biegemoment in Y-Richtung My
Nenngrösse NG (l/s)
Nennweite NW (mm)
Aussendurchmesser OD (mm)
Radlast RL (to)
Bodenstärke t1 (mm)
Volumen V (l)
Wandstärke W (mm) 70
Wandstärke w1 (mm)
Stk./Pal. 1
Gewicht kg/VE 794
Oberfläche
Kanten
Nocken
Bewehrung
Produktlinie
HW 14
Artikelnummer 183580
Verfügbarkeit
Artikelnummer 183580
Preis 3'620.00
Per Stk
Gruppe DK
LE-Norm
Farbe
Typ
Belastungsklasse BK
Innendurchmesser D (mm)
Innendurchmesser d1 (mm)
Nennweite DN (mm)
Einwohnergleichwert EGW
Maximale Belastung F max.
Länge L (mm) 1140
Länge l1 (mm)
Länge l2 (mm)
Breite B (mm) 1530
Breite b1 (mm)
Höhe H (mm) 950
Höhe h2 (mm)
Höhe h1 (mm)
Höhe h3 (mm)
Lichte Weite LW (mm)
Max. zulässiges Biegemoment MBr
Biegemoment in X-Richtung Mx
Biegemoment in Y-Richtung My
Nenngrösse NG (l/s)
Nennweite NW (mm)
Aussendurchmesser OD (mm)
Radlast RL (to)
Bodenstärke t1 (mm)
Volumen V (l)
Wandstärke W (mm) 70
Wandstärke w1 (mm)
Stk./Pal. 1
Gewicht kg/VE 1046
Oberfläche
Kanten
Nocken
Bewehrung
Produktlinie
HW 14
Artikelnummer 188779
Verfügbarkeit
Artikelnummer 188779
Preis 895.00
Per Stk
Gruppe DK
LE-Norm
Farbe
Typ
Belastungsklasse BK
Innendurchmesser D (mm)
Innendurchmesser d1 (mm)
Nennweite DN (mm)
Einwohnergleichwert EGW
Maximale Belastung F max.
Länge L (mm) 600
Länge l1 (mm)
Länge l2 (mm)
Breite B (mm) 600
Breite b1 (mm)
Höhe H (mm) 600
Höhe h2 (mm)
Höhe h1 (mm)
Höhe h3 (mm)
Lichte Weite LW (mm)
Max. zulässiges Biegemoment MBr
Biegemoment in X-Richtung Mx
Biegemoment in Y-Richtung My
Nenngrösse NG (l/s)
Nennweite NW (mm)
Aussendurchmesser OD (mm)
Radlast RL (to)
Bodenstärke t1 (mm)
Volumen V (l)
Wandstärke W (mm) 80
Wandstärke w1 (mm)
Stk./Pal.
Gewicht kg/VE 250
Oberfläche
Kanten
Nocken
Bewehrung
Produktlinie
HW 14
Artikelnummer 154854
Verfügbarkeit
Artikelnummer 154854
Preis 1'340.00
Per Stk
Gruppe DK
LE-Norm
Farbe
Typ
Belastungsklasse BK
Innendurchmesser D (mm)
Innendurchmesser d1 (mm)
Nennweite DN (mm)
Einwohnergleichwert EGW
Maximale Belastung F max.
Länge L (mm) 1000
Länge l1 (mm)
Länge l2 (mm)
Breite B (mm) 1000
Breite b1 (mm)
Höhe H (mm) 800
Höhe h2 (mm)
Höhe h1 (mm)
Höhe h3 (mm)
Lichte Weite LW (mm)
Max. zulässiges Biegemoment MBr
Biegemoment in X-Richtung Mx
Biegemoment in Y-Richtung My
Nenngrösse NG (l/s)
Nennweite NW (mm)
Aussendurchmesser OD (mm)
Radlast RL (to)
Bodenstärke t1 (mm)
Volumen V (l)
Wandstärke W (mm) 100
Wandstärke w1 (mm)
Stk./Pal. 1
Gewicht kg/VE 778
Oberfläche
Kanten
Nocken
Bewehrung
Produktlinie
HW 14
Artikelnummer 147478
Verfügbarkeit
Artikelnummer 147478
Preis 1'340.00
Per Stk
Gruppe DK
LE-Norm
Farbe
Typ
Belastungsklasse BK
Innendurchmesser D (mm)
Innendurchmesser d1 (mm)
Nennweite DN (mm)
Einwohnergleichwert EGW
Maximale Belastung F max.
Länge L (mm) 1000
Länge l1 (mm)
Länge l2 (mm)
Breite B (mm) 1000
Breite b1 (mm)
Höhe H (mm) 800
Höhe h2 (mm)
Höhe h1 (mm)
Höhe h3 (mm)
Lichte Weite LW (mm)
Max. zulässiges Biegemoment MBr
Biegemoment in X-Richtung Mx
Biegemoment in Y-Richtung My
Nenngrösse NG (l/s)
Nennweite NW (mm)
Aussendurchmesser OD (mm)
Radlast RL (to)
Bodenstärke t1 (mm)
Volumen V (l)
Wandstärke W (mm) 100
Wandstärke w1 (mm)
Stk./Pal.
Gewicht kg/VE 780
Oberfläche
Kanten
Nocken
Bewehrung
Produktlinie
HW 14
Artikelnummer 177774
Verfügbarkeit
Artikelnummer 177774
Preis 1'340.00
Per Stk
Gruppe DK
LE-Norm
Farbe
Typ
Belastungsklasse BK
Innendurchmesser D (mm)
Innendurchmesser d1 (mm)
Nennweite DN (mm)
Einwohnergleichwert EGW
Maximale Belastung F max.
Länge L (mm) 1000
Länge l1 (mm)
Länge l2 (mm)
Breite B (mm) 1000
Breite b1 (mm)
Höhe H (mm) 800
Höhe h2 (mm)
Höhe h1 (mm)
Höhe h3 (mm)
Lichte Weite LW (mm)
Max. zulässiges Biegemoment MBr
Biegemoment in X-Richtung Mx
Biegemoment in Y-Richtung My
Nenngrösse NG (l/s)
Nennweite NW (mm)
Aussendurchmesser OD (mm)
Radlast RL (to)
Bodenstärke t1 (mm)
Volumen V (l)
Wandstärke W (mm) 100
Wandstärke w1 (mm)
Stk./Pal.
Gewicht kg/VE 781
Oberfläche
Kanten
Nocken
Bewehrung
Produktlinie
HW 14
Artikelnummer 185565
Verfügbarkeit
Artikelnummer 185565
Preis 1'340.00
Per Stk
Gruppe DK
LE-Norm
Farbe
Typ
Belastungsklasse BK
Innendurchmesser D (mm)
Innendurchmesser d1 (mm)
Nennweite DN (mm)
Einwohnergleichwert EGW
Maximale Belastung F max.
Länge L (mm) 1000
Länge l1 (mm)
Länge l2 (mm)
Breite B (mm) 1000
Breite b1 (mm)
Höhe H (mm) 800
Höhe h2 (mm)
Höhe h1 (mm)
Höhe h3 (mm)
Lichte Weite LW (mm)
Max. zulässiges Biegemoment MBr
Biegemoment in X-Richtung Mx
Biegemoment in Y-Richtung My
Nenngrösse NG (l/s)
Nennweite NW (mm)
Aussendurchmesser OD (mm)
Radlast RL (to)
Bodenstärke t1 (mm)
Volumen V (l)
Wandstärke W (mm) 100
Wandstärke w1 (mm)
Stk./Pal.
Gewicht kg/VE 768
Oberfläche
Kanten
Nocken
Bewehrung
Produktlinie
HW 14
Artikelnummer 155869
Verfügbarkeit
Artikelnummer 155869
Preis 1'340.00
Per Stk
Gruppe DK
LE-Norm
Farbe
Typ
Belastungsklasse BK
Innendurchmesser D (mm)
Innendurchmesser d1 (mm)
Nennweite DN (mm)
Einwohnergleichwert EGW
Maximale Belastung F max.
Länge L (mm) 1000
Länge l1 (mm)
Länge l2 (mm)
Breite B (mm) 1000
Breite b1 (mm)
Höhe H (mm) 800
Höhe h2 (mm)
Höhe h1 (mm)
Höhe h3 (mm)
Lichte Weite LW (mm)
Max. zulässiges Biegemoment MBr
Biegemoment in X-Richtung Mx
Biegemoment in Y-Richtung My
Nenngrösse NG (l/s)
Nennweite NW (mm)
Aussendurchmesser OD (mm)
Radlast RL (to)
Bodenstärke t1 (mm)
Volumen V (l)
Wandstärke W (mm) 100
Wandstärke w1 (mm)
Stk./Pal.
Gewicht kg/VE 777
Oberfläche
Kanten
Nocken
Bewehrung
Produktlinie
HW 14
Artikelnummer 199654
Verfügbarkeit
Artikelnummer 199654
Preis 1'610.00
Per Stk
Gruppe DK
LE-Norm
Farbe
Typ
Belastungsklasse BK
Innendurchmesser D (mm)
Innendurchmesser d1 (mm)
Nennweite DN (mm)
Einwohnergleichwert EGW
Maximale Belastung F max.
Länge L (mm) 1000
Länge l1 (mm)
Länge l2 (mm)
Breite B (mm) 1000
Breite b1 (mm)
Höhe H (mm) 1200
Höhe h2 (mm)
Höhe h1 (mm)
Höhe h3 (mm)
Lichte Weite LW (mm)
Max. zulässiges Biegemoment MBr
Biegemoment in X-Richtung Mx
Biegemoment in Y-Richtung My
Nenngrösse NG (l/s)
Nennweite NW (mm)
Aussendurchmesser OD (mm)
Radlast RL (to)
Bodenstärke t1 (mm)
Volumen V (l)
Wandstärke W (mm) 100
Wandstärke w1 (mm)
Stk./Pal.
Gewicht kg/VE 1213
Oberfläche
Kanten
Nocken
Bewehrung
Produktlinie
HW 14
Artikelnummer 142563
Verfügbarkeit
Artikelnummer 142563
Preis 1'610.00
Per Stk
Gruppe DK
LE-Norm
Farbe
Typ
Belastungsklasse BK
Innendurchmesser D (mm)
Innendurchmesser d1 (mm)
Nennweite DN (mm)
Einwohnergleichwert EGW
Maximale Belastung F max.
Länge L (mm) 1000
Länge l1 (mm)
Länge l2 (mm)
Breite B (mm) 1000
Breite b1 (mm)
Höhe H (mm) 1200
Höhe h2 (mm)
Höhe h1 (mm)
Höhe h3 (mm)
Lichte Weite LW (mm)
Max. zulässiges Biegemoment MBr
Biegemoment in X-Richtung Mx
Biegemoment in Y-Richtung My
Nenngrösse NG (l/s)
Nennweite NW (mm)
Aussendurchmesser OD (mm)
Radlast RL (to)
Bodenstärke t1 (mm)
Volumen V (l)
Wandstärke W (mm) 100
Wandstärke w1 (mm)
Stk./Pal.
Gewicht kg/VE 1216
Oberfläche
Kanten
Nocken
Bewehrung
Produktlinie
HW 14
Artikelnummer 155445
Verfügbarkeit
Artikelnummer 155445
Preis 1'610.00
Per Stk
Gruppe DK
LE-Norm
Farbe
Typ
Belastungsklasse BK
Innendurchmesser D (mm)
Innendurchmesser d1 (mm)
Nennweite DN (mm)
Einwohnergleichwert EGW
Maximale Belastung F max.
Länge L (mm) 1000
Länge l1 (mm)
Länge l2 (mm)
Breite B (mm) 1000
Breite b1 (mm)
Höhe H (mm) 800
Höhe h2 (mm)
Höhe h1 (mm)
Höhe h3 (mm)
Lichte Weite LW (mm)
Max. zulässiges Biegemoment MBr
Biegemoment in X-Richtung Mx
Biegemoment in Y-Richtung My
Nenngrösse NG (l/s)
Nennweite NW (mm)
Aussendurchmesser OD (mm)
Radlast RL (to)
Bodenstärke t1 (mm)
Volumen V (l)
Wandstärke W (mm) 100
Wandstärke w1 (mm)
Stk./Pal.
Gewicht kg/VE 1218
Oberfläche
Kanten
Nocken
Bewehrung
Produktlinie
HW 14
Artikelnummer 158962
Verfügbarkeit
Artikelnummer 158962
Preis 1'610.00
Per Stk
Gruppe DK
LE-Norm
Farbe
Typ
Belastungsklasse BK
Innendurchmesser D (mm)
Innendurchmesser d1 (mm)
Nennweite DN (mm)
Einwohnergleichwert EGW
Maximale Belastung F max.
Länge L (mm) 1000
Länge l1 (mm)
Länge l2 (mm)
Breite B (mm) 1000
Breite b1 (mm)
Höhe H (mm) 1200
Höhe h2 (mm)
Höhe h1 (mm)
Höhe h3 (mm)
Lichte Weite LW (mm)
Max. zulässiges Biegemoment MBr
Biegemoment in X-Richtung Mx
Biegemoment in Y-Richtung My
Nenngrösse NG (l/s)
Nennweite NW (mm)
Aussendurchmesser OD (mm)
Radlast RL (to)
Bodenstärke t1 (mm)
Volumen V (l)
Wandstärke W (mm) 100
Wandstärke w1 (mm)
Stk./Pal.
Gewicht kg/VE 1219
Oberfläche
Kanten
Nocken
Bewehrung
Produktlinie
HW 14
Artikelnummer 154455
Verfügbarkeit
Artikelnummer 154455
Preis 1'610.00
Per Stk
Gruppe DK
LE-Norm
Farbe
Typ
Belastungsklasse BK
Innendurchmesser D (mm)
Innendurchmesser d1 (mm)
Nennweite DN (mm)
Einwohnergleichwert EGW
Maximale Belastung F max.
Länge L (mm) 1000
Länge l1 (mm)
Länge l2 (mm)
Breite B (mm) 1000
Breite b1 (mm)
Höhe H (mm) 800
Höhe h2 (mm)
Höhe h1 (mm)
Höhe h3 (mm)
Lichte Weite LW (mm)
Max. zulässiges Biegemoment MBr
Biegemoment in X-Richtung Mx
Biegemoment in Y-Richtung My
Nenngrösse NG (l/s)
Nennweite NW (mm)
Aussendurchmesser OD (mm)
Radlast RL (to)
Bodenstärke t1 (mm)
Volumen V (l)
Wandstärke W (mm) 100
Wandstärke w1 (mm)
Stk./Pal.
Gewicht kg/VE 1206
Oberfläche
Kanten
Nocken
Bewehrung
Produktlinie
HW 14
Artikelnummer 158565
Verfügbarkeit
Artikelnummer 158565
Preis 1'610.00
Per Stk
Gruppe DK
LE-Norm
Farbe
Typ
Belastungsklasse BK
Innendurchmesser D (mm)
Innendurchmesser d1 (mm)
Nennweite DN (mm)
Einwohnergleichwert EGW
Maximale Belastung F max.
Länge L (mm) 1000
Länge l1 (mm)
Länge l2 (mm)
Breite B (mm) 1000
Breite b1 (mm)
Höhe H (mm) 1200
Höhe h2 (mm)
Höhe h1 (mm)
Höhe h3 (mm)
Lichte Weite LW (mm)
Max. zulässiges Biegemoment MBr
Biegemoment in X-Richtung Mx
Biegemoment in Y-Richtung My
Nenngrösse NG (l/s)
Nennweite NW (mm)
Aussendurchmesser OD (mm)
Radlast RL (to)
Bodenstärke t1 (mm)
Volumen V (l)
Wandstärke W (mm) 100
Wandstärke w1 (mm)
Stk./Pal.
Gewicht kg/VE 1215
Oberfläche
Kanten
Nocken
Bewehrung
Produktlinie
HW 14
Artikelnummer 158956
Verfügbarkeit
Artikelnummer 158956
Preis 1'610.00
Per Stk
Gruppe DK
LE-Norm
Farbe
Typ
Belastungsklasse BK
Innendurchmesser D (mm)
Innendurchmesser d1 (mm)
Nennweite DN (mm)
Einwohnergleichwert EGW
Maximale Belastung F max.
Länge L (mm) 1000
Länge l1 (mm)
Länge l2 (mm)
Breite B (mm) 1000
Breite b1 (mm)
Höhe H (mm) 1200
Höhe h2 (mm)
Höhe h1 (mm)
Höhe h3 (mm)
Lichte Weite LW (mm)
Max. zulässiges Biegemoment MBr
Biegemoment in X-Richtung Mx
Biegemoment in Y-Richtung My
Nenngrösse NG (l/s)
Nennweite NW (mm)
Aussendurchmesser OD (mm)
Radlast RL (to)
Bodenstärke t1 (mm)
Volumen V (l)
Wandstärke W (mm) 100
Wandstärke w1 (mm)
Stk./Pal.
Gewicht kg/VE 1223
Oberfläche
Kanten
Nocken
Bewehrung
Produktlinie
HW 14